Home / Blast Booths / Rooms

Blasting Booths

BlastOne has nearly 60 years of experience in designing, engineering and servicing sandblast rooms and booths in America, Australia, and globally. We have a unique process to conceptualize, design, and build high-performance sandblasting rooms and booths for many industrial applications enclosures to match your specific requirements – from a small, shipping container blast room, to large wind tower blast room.

America’s Expert Supplier of Industrial Sandblasting Booths

The range of solutions to Corrosion Control Industry challenges supplied by BlastOne include designing, building and installing blast and paint rooms. The industries that we have supported with high productivity, high efficiency surface preparation and finishing facilities include defense, railroad, oil and gas, marine, truck and trailer, green energy and more. Our in-house blast and paint booth team includes design engineers, fabricators and installers and is located throughout 12 branch offices across the United States.

Our solutions are configured to meet your needs – from full construction to retrofitting existing plants. We can provide anything from kit-form to turn-key to suit your application and budget. Give us your blasting and coating challenges and we’ll deliver – on time and on budget.

Blast Booths / Rooms

Portable Shipping
Container Blast Room

Industrial & Pre-Engineered
Blast Rooms

Blast Booths / Rooms

General Purpose
Blast Room

Velocity System

Blast Booths / Rooms

Rail Car
Blast Room

Blast Booths / Rooms

Wind Tower
Blast Room

Blast Booths / Rooms

Ship Module
Blast Room

Blast Booths / Rooms

Temporary Modular
Blast Facility

IMG_1232

Large Fabric
Lift-up Doors

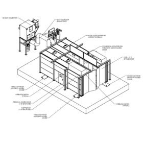
Key Components

blast chamber

Blasting
Chambers

recycling tower

Abrasive
Recycling

blast room dust collector

Dust
Collection

blast equipment

Blasting
Equipment

material handling

Material
Handling

robotics

Automation

Aftermarket Service

Aftermarket
Service

Industries Served

On-Site Blast Room Tour

Explore the Blast One heavy-duty robotic blast room at Blast One International’s headquarters in Columbus, Ohio. This booth has a single entry and places all equipment on one side, with exhaust plenums at the rear instead of the usual flow-through design. It features a gantry-mounted Blastman B20 robot with up to eight axes of movement—longitudinal, vertical, and horizontal—using telescopic and joint boom configurations for different applications.

The system includes an oscillating conveyor for abrasive recovery, offering a simpler, more effective alternative to screw augers. Abrasives are lifted to an air wash system that removes dust and fine particles so only clean abrasives are reused. A Blast One dust collector, designed for blasting operations, captures dust during the process and uses an automatic pulsing system to clean its vertical cartridges, improving dust control and operational safety.

Case Studies

Our Approach

A deep dive into our Approach and What to Expect

By following our five-step process, you:

  • Drive out risk in budget, schedule, and performance from every project
  • Protect yourself and your company from committing to a project outside your scope
  • Guarantees a successful project – from beginning to end
  • Reduce costs
  • Improve quality and productivity
  • Lower maintenance
  • Cleaner and safer equipment

Training & Support

25 Important Considerations when Building a Blast Facility

If you are purchasing a turnkey blast room for building it yourself, there are 25 subjects you need to be well versed in. BlastOne has compiled a detailed report containing an in-depth guide on all the critical components of a blast room: design considerations, abrasive education, and production techniques.

Blastman Robotics LTD: The Reliable Blast Cleaning Solution

Typical industrial sandblasting automated & robotic blasting equipment require fixed, purpose-built infrastructure to operate. BlastOne specializes in designing, building, and commissioning robotic sandblasting facilities to provide custom solutions for our customer’s corrosion control needs.

Blast Booths / Rooms

Knowledge & Learning

Videos from the Experts

How to | Primed Insights | Safety Tips

Myths about Robotic Abrasive Blasting

Watch Video

How to Properly Set-Up Your Blasting Operation

Watch Video

Wheel Machine or Blasting Robot?

Watch Video

Which Is Better – A Blasting Robot Or Wheel Machine?

Your Work Products Determine Which System Will Benefit You Most See on Website:   Wheel Blasting      Robotic Blasting For size reference listed in the below table: Small Part: Anything less than 5-ft x 5-ft 5-ft Medium Part: Anything larger than 5-ft cube to 10-ft x 10-ft x 30-ft Long Large Part: Anything larger than [...]

Blast Booth Reclamation Systems: Screw Vs Oscillating Conveyor

Blastroom Recovery Systems - Don't get Screwed out of productivity Recently, BlastOne participated in Chicago’s FabTech convention where we displayed our unique underfloor reclamation system. The response was phenomenal. We literally had hundreds of industrial fabricators look at our system and suddenly see a solution to their reoccurring problem. Most under-floor recovery systems use a [...]

5 critical components to consider when designing an abrasive blast room

As paint booths and blast rooms are generally one-time capital purchases, companies tend to have no staff personnel who can guide the decision maker with respect to the process of exploration and costing.  BlastOne are experts in the design, engineering, construction, and implementation of paint booths and blast rooms and offer the following 5 critical [...]

Contact BlastOne

We love to talk to customers and help them make the best decisions when purchasing equipment.
You can reach us via our Live Chat, Email, Phone, and Online Form.

Add to quote:

Registration is required to create a Quote.

Click Here to Login or Register.

Add to existing quote:

Add to Quote

Add to a new quote:

Send the request

BlastOne says
Thank you for submitting your quote. A sales representative will follow up with you asap.
Share Quote via Email

Share